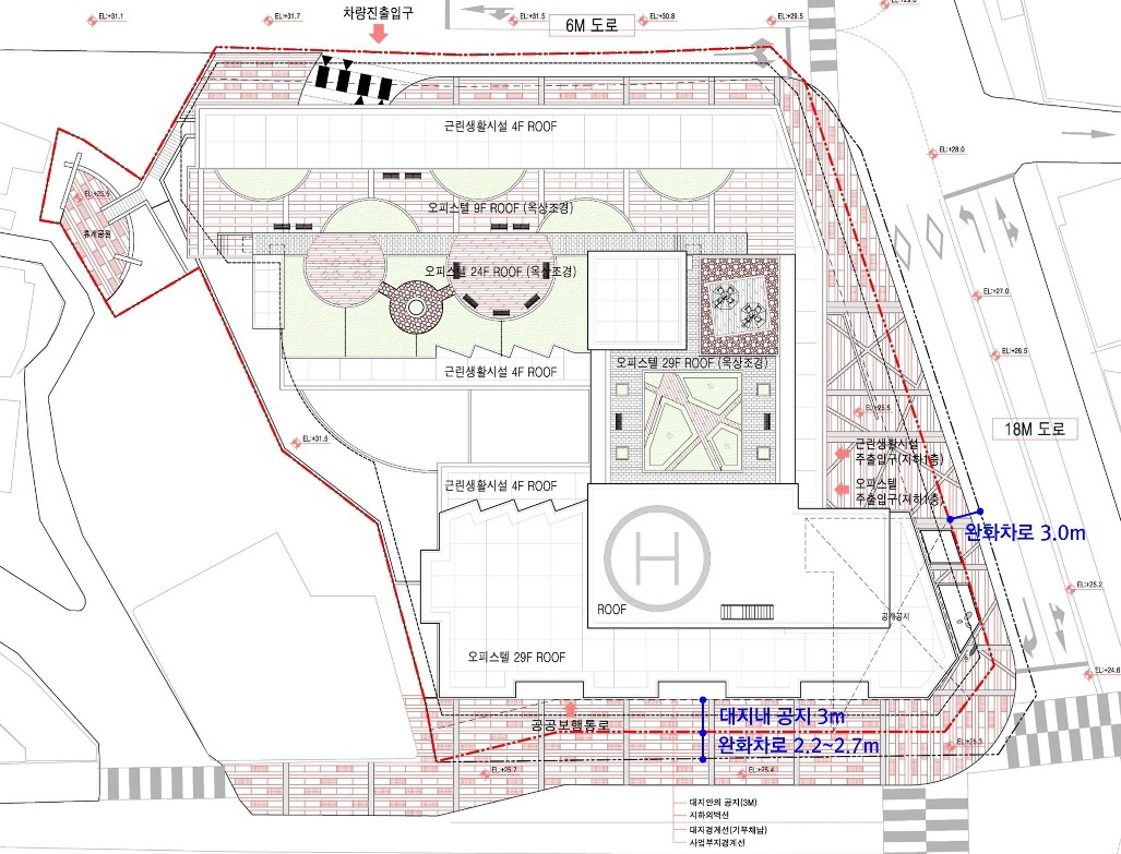
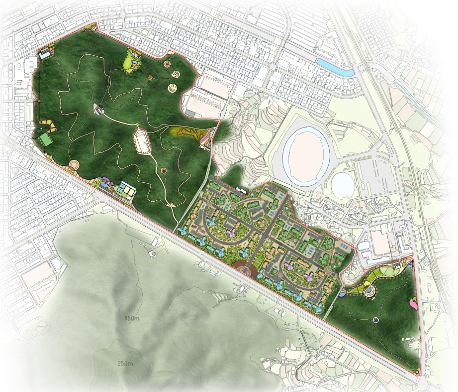
개발계획

다양하고 복합적인 도시개발수요에 대응하기 위하여 입지여건, 관련계획 및 법규 검토 등 개발기획단계의 토지 진단부터 디지털전환, 탄소중립, 신재생에너지 등의 시대속에 보다 미래지향적이고 지속가능하며 실현성을 극대화 할 수 있는 개발 구상 및 계획을 수립합니다.

관리자 2022-11-15 341
관리자 2022-11-15 241
관리자 2022-11-15 285